不動産仲介物件につきお問い合わせ、内見予約は成美企画(0959-72-1721)まで
空き家の詳細写真はこちら
タグ
基本情報
- 物件No.
- 669
- 状況
- 交渉中
- 所在地
- 五島市玉之浦町立谷
- 価格
- 購入:4,500,000円
- 土地面積
- 960平方m
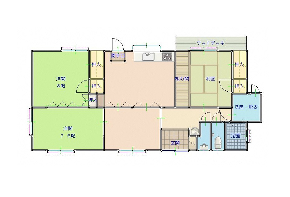
- 建物面積
- 106平方m
- 構造
- 木造
- 補修の要否
- なし
- 費用負担
- 入居者負担
- 建築年
- 2009年(平成21年)頃
- 利用状況
- 2024年(令和6年)頃から空き家
- 主要施設等までの距離
- 保育園:4.3km
小学校:5.3km
中学校:5.3km
市役所支所:6.6km
商店・スーパー:6.5km
公園:4.5km
銀行・ATM:1.9km
- 火災保険等の加入
- 未加入(入居者で加入)
- ペットの飼育
- 飼育可(屋内・屋外)
- ガス
- プロパンガス
- 水道
- 上水道
- 風呂
- 電気
- 空調
- あり(3室)
- トイレ
- 水洗(浄化槽)
- 駐車場
- あり(2台)
- 農地・菜園
- あり(広さ:150坪)
- 特記事項
- ・太陽光発電有
・解体要検討家屋あり(敷地内) - 物件の周辺地図
- GoogleMap
※情報は変更になる場合があります。





























