空き家の詳細写真はこちら
タグ
基本情報
- 物件No.
- 694
- 状況
- 受付中
- 所在地
- 五島市奈留町大串(奈留島)
- 価格
- 賃貸:15,000円
売却:要相談 - 土地面積
- 122.89平方m
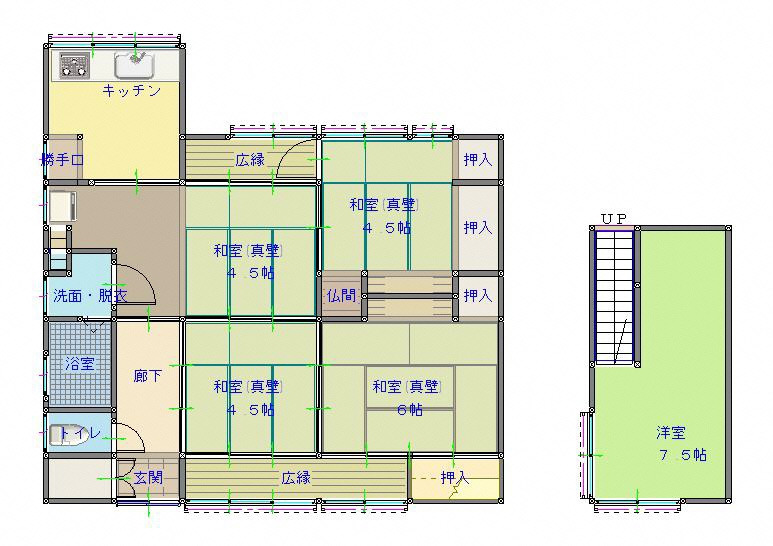
- 建物面積
- 1階:81.71平方m
2階:19.83平方m - 構造
- 木造
- 補修の要否
- 多少の補修が必要
- 費用負担
- 入居者負担
- 建築年
- 1959年(昭和34)年頃
- 利用状況
- 2025年(令和7年)から空き家
- 主要施設等までの距離
- 保育園:4.8km
小学校:4.8km
中学校:4.8km
市役所支所:4.8km
商店・スーパー:4.4km
公園:4.1km
銀行・ATM:4.7km - 火災保険等の加入
- 未加入
- ペットの飼育
- 飼育可(屋内・屋外)
- ガス
- プロパンガス
- 水道
- 上水道
- 風呂
- 灯油
- 空調
- あり(1室)
- トイレ
- 簡易水洗
- 駐車場
- なし
- 特記事項
- なし
- 物件の周辺地図
- GoogleMap
※情報は変更になる場合があります。





























