不動産仲介物件につき、内見予約・お問い合わせは旭板金(0959-73-5910)まで
物件の詳細写真はこちら
タグ
基本情報
- 物件No.
- 587
- 状況
- 受付中
- 所在地
- 五島市大荒町
- 価格
- 賃貸:50,000円
- 土地面積
- 190平方m
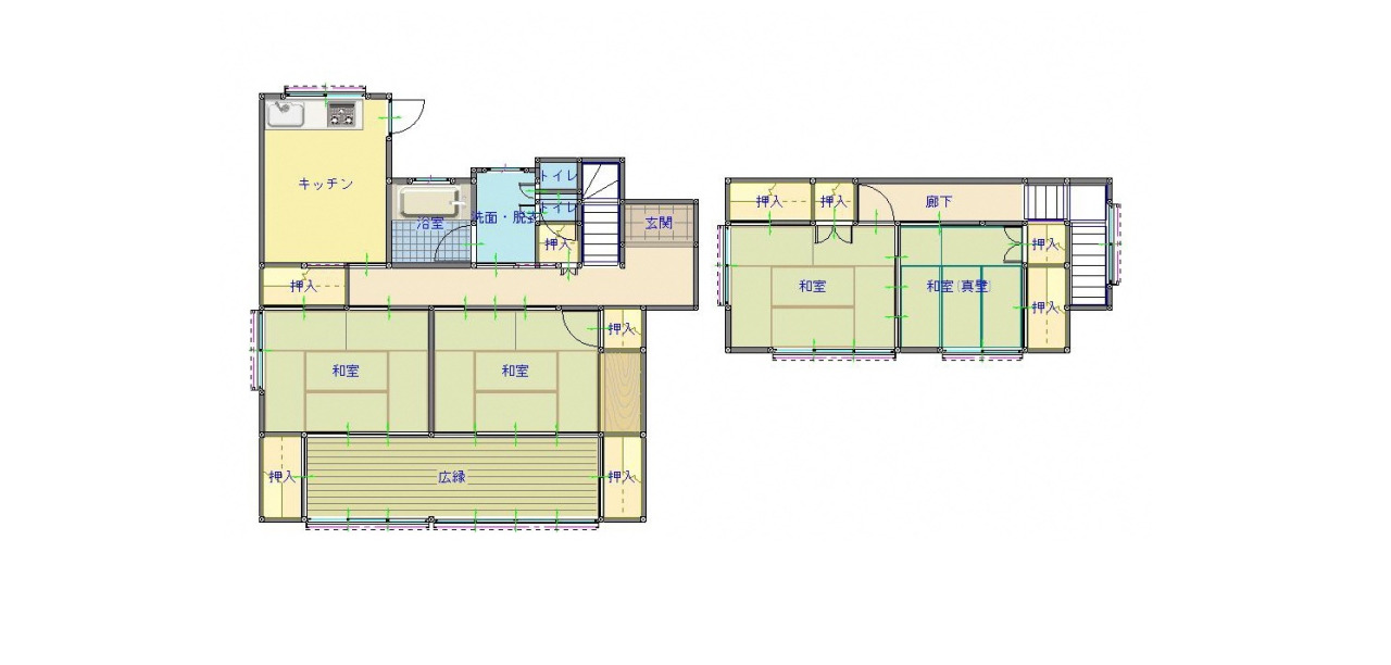
- 建物面積
- 1階72.81平方m
2階29.64平方m - 構造
- 木造
- 補修の要否
- なし
- 費用負担
- 所有者負担
- 建築年
- 1975年(昭和50年)頃
- 利用状況
- 2025年(令和7年)4月頃から空き家
- 主要施設等までの距離
- 保育園:1.6km
小学校:0.3km
中学校:1.4km
市役所支所:0.9km
商店・スーパー:2.2km
銀行・ATM:1.1km - 火災保険等の加入
- 加入済
- ペットの飼育
- 飼育可(屋外)
- ガス
- プロパンガス
- 水道
- 上水道
- 風呂
- ガス
- 空調
- あり(1室)
- トイレ
- 簡易水洗
- 駐車場
- あり(特記事項に記載)
- 農地・菜園
- なし
- 特記事項
- 敷金2ヶ月仲介手数料1ヶ月別途税
駐車場は徒歩4分の場所に有料駐車場あり。駐車場代は貸主負担
- 物件の周辺地図
- GoogleMap
※情報は変更になる場合があります。





























