タグ
基本情報
- 物件No.
- 494
- 状況
- 受付中
- 所在地
- 五島市岐宿町岐宿
- 価格
- 賃貸:50,000円
購入:7,800,000円
- 土地面積
- 285.92平方m
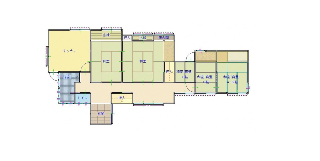
- 建物面積
- 120.9平方m
- 構造
- 木造
- 補修の要否
- なし
- 費用負担
- 入居者負担
- 建築年
- 1970年(昭和45年)頃
- 利用状況
- 2019年(令和元年)頃から空き家
- 主要施設等までの距離
- 保育園:0.3km
小学校:3.6km
中学校:3.6km
市役所支所:0.5km
商店・スーパー:10.1km
銀行・ATM:0.3km
- 火災保険等の加入
- 加入済
- ペットの飼育
- 不可
- ガス
- プロパンガス
- 水道
- 上水道
- 風呂
- ガス
- 空調
- あり(2室)
- トイレ
- 水洗(浄化槽)
- 駐車場
- あり(1台)
- 農地・菜園
- あり
- 特記事項
- ・賃貸の場合は移住者のみ可、敷金2ヶ月、ペット不可、室内禁煙
・数寄屋造りのお茶室と付属の庭あり
・2025年(令和7年)3月リフォーム済み - 物件の周辺地図
- GoogleMap
※情報は変更になる場合があります。





























