物件の詳細写真はこちら
タグ
基本情報
- 物件No.
- 696
- 状況
- 受付中
- 所在地
- 五島市上大津町
- 価格
- 賃貸:55,000円
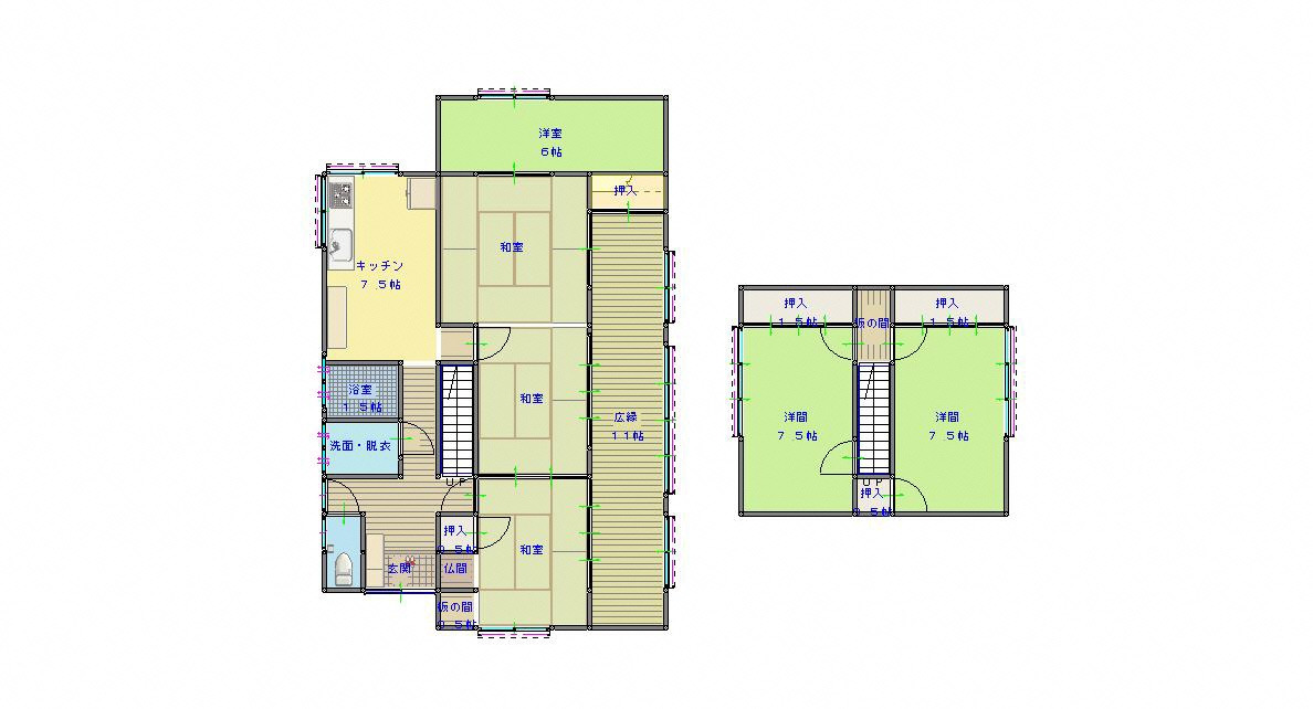
- 建物面積
- 90.62平方m
- 構造
- 木造
- 補修の要否
- 補修は不要
- 費用負担
- 所有者負担
- 建築年
- 1980年(昭和55年)頃
- 利用状況
- 2025年(令和7年)から空き家
- 主要施設等までの距離
- 保育園:0.8km
小学校:1.7km
中学校:2.6km
市役所支所:2.0km
商店・スーパー:0.9km
公園:1.3km
銀行・ATM:1.4km - 火災保険等の加入
- 所有者で加入済
- ペットの飼育
- 不可
- ガス
- プロパンガス
- 水道
- 上水道
- 風呂
- ガス
- 空調
- あり(2室)
- トイレ
- 簡易水洗
- 駐車場
- あり(2台)
- 農地・菜園
- あり
- 特記事項
- 敷金2ヶ月
- 物件の周辺地図
- GoogleMap
※情報は変更になる場合があります。





























