空き家の詳細写真はこちら
タグ
エリア
基本情報
- 物件No.
- 652
- 状況
- 交渉中
- 所在地
- 五島市久賀町(久賀島)
- 価格
- 賃貸:30,000円
購入:3,000,000円 - 建物面積
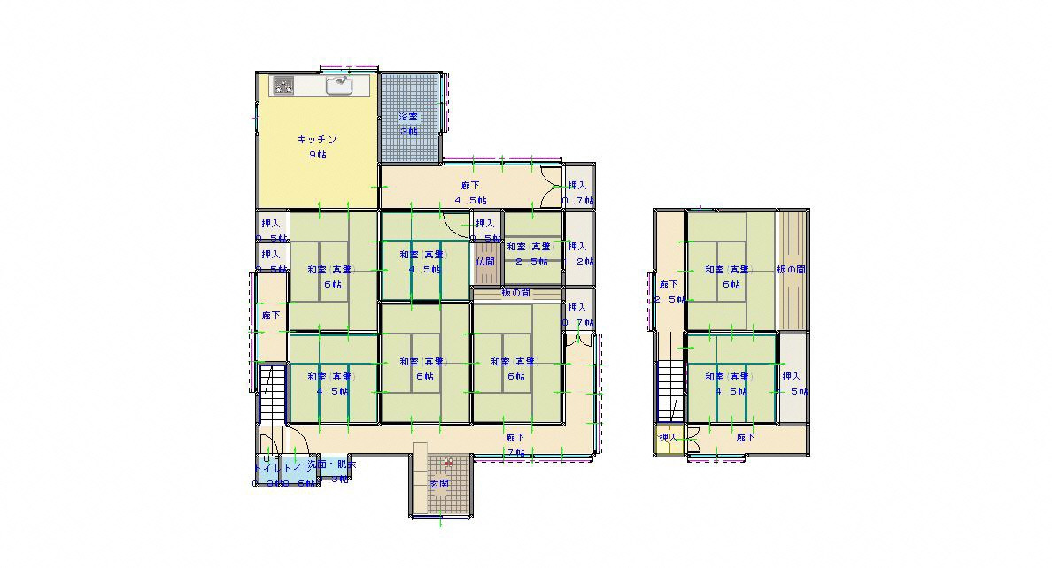
- 110.1平方m
- 構造
- 木造
- 補修の要否
- あり
- 費用負担
- 入居者負担
- 建築年
- 不明
1992年(平成4年)頃リフォーム - 利用状況
- 2025年(令和7年)2月頃から空き家
- 主要施設等までの距離
- 小学校:0.5km
中学校:0.5km
市役所支所:0.3km
銀行・ATM:0.4km
その他 郵便局:0.4km - 火災保険等の加入
- 未加入(入居者で加入)
- ペットの飼育
- 飼育可(屋内・屋外)
- ガス
- プロパンガス
- 水道
- 上水道
- 風呂
- 灯油
- 空調
- なし
- トイレ
- 汲み取り
- 駐車場
- あり(1台)
- 農地・菜園
- あり
- 特記事項
- ・家の裏に古井戸、倉庫あり
・ペットは飼育可だが要相談 - 物件の周辺地図
- GoogleMap
※情報は変更になる場合があります。





























